ESTRUCTURAS TENSIONADAS
Estas estructuras son coberturas basadas en estructuras ligeras, las cuales logran una gran estabilidad combinando y equilibrando las fuerzas de elementos rígidos (postes, arcos, etc.) con la versatilidad y adaptabilidad de elementos flexibles (membranas y cables).
Techado Almacenes IMPALA
Modelado de membrana con el programa "Easy", plantillado y elaboración de planos para fabricación tanto de las geomembranas como de los accesorios.
Modelado 3D en AutoCAD de varios diseños de Estructuras Tensionadas diseñadas. Siguiendo con la elaboración de planos de Armado de mantas y Montaje.

MODELADO ALMACENES IMPALA
Modelado 3D en AutoCAD y MPanel de estructura metálica, hormigon y geomembranas para el techado perimetral del almacen de minerales.

ANFITEATRO PARQUE ZONAL SANTA ROSA
Modelado 3D en AutoCAD y MPanel de estructura metálica, hormigon y geomembranas para techado de patio interior de comidas

ESTRUCTURA TENSIONADA EN PATIO DE COLEGIO
Modelado 3D en AutoCAD y MPanel de estructura metálica, hormigon y geomembranas para el techado de un patio de colegio

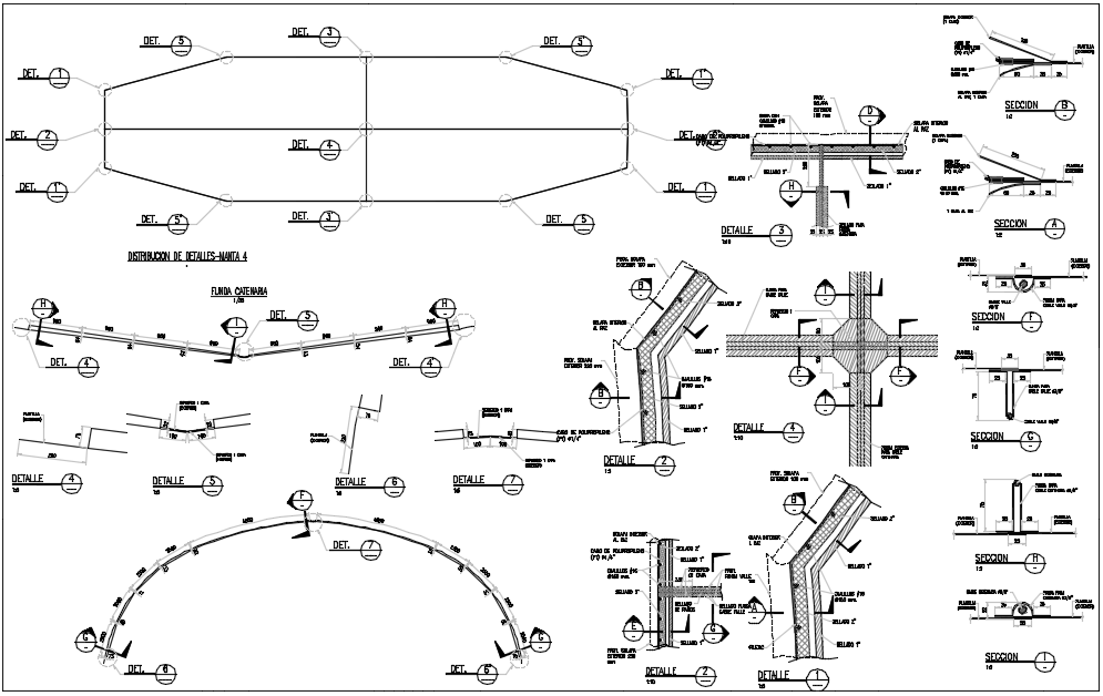
PLANO DE ARMADO
Plano de armado de mantas de la etapa 1A de Almacenes IMPALA
donde se detalla los pilares imbolucrados en dicha "Manta" el numero de plantillas que tiene y las longitudes de cada lado.

PLANO ALZADOS ANFITEATRO
Elaboracion de plano de alzados para anfiteatro con AutoCAd, se detalla ejes, mantas, accesorios, alturas.



